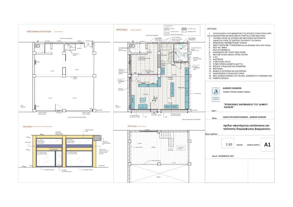
Με στόχο την ενίσχυση του δικτύου κοινωνικής αλληλεγγύης και την παροχή ουσιαστικής στήριξης σε πολίτες που το έχουν ανάγκη, ο Δήμος Χανίων προχωρά στη δημιουργία Κοινωνικού Φαρμακείου. Πρόκειται για μια σύγχρονη κοινωνική δομή που θα παρέχει δωρεάν φαρμακευτικό και υγειονομικό υλικό σε ευάλωτες κοινωνικές ομάδες. Οι εργασίες για τη λειτουργία του Κοινωνικού Φαρμακείου έχουν ήδη ξεκινήσει. Η δομή θα στεγάζεται στην οδό Μυλωνογιάννη 92, σε πολύ κοντινή απόσταση από το Δημαρχείο Χανίων, την Κοινωνική Υπηρεσία, το Κοινωνικό Παντοπωλείο και το Κοινωνικό Πλυντήριο/Κομμωτήριο του Δήμου. Η επιλογή της συγκεκριμένης τοποθεσίας στοχεύει στην εύκολη πρόσβαση των πολιτών τόσο στις κοινωνικές υπηρεσίες όσο και στη δωρεάν φαρμακευτική περίθαλψη.

Ο Δήμος Χανίων δημιουργεί «Κοινωνικό Φαρμακείο» για την στήριξη ευάλωτων πολιτών

Σύμφωνα με τον σχεδιασμό της δημοτικής αρχής το Κοινωνικό Φαρμακείο του Δήμου Χανίων θα ξεκινήσει την λειτουργία του εντός του 2026. Ήδη έχουν ολοκληρωθεί οι εργασίες αποξήλωσης του παλιού εξοπλισμού, ενώ το επόμενο στάδιο περιλαμβάνει τη διαμόρφωση ενός πλήρως λειτουργικού χώρου, με χώρο υποδοχής κοινού, αποθηκευτικούς χώρους και σύγχρονες υποδομές υγιεινής, ώστε να διασφαλίζεται η ποιότητα και η ασφάλεια των παρεχόμενων υπηρεσιών.

Ο Δήμος Χανίων δημιουργεί «Κοινωνικό Φαρμακείο» για την στήριξη ευάλωτων πολιτών

Όπως επεσήμανε ο Δήμαρχος Χανίων, Παναγιώτης Σημανδηράκης: «Η δημιουργία του Κοινωνικού Φαρμακείου αποτελεί ένα ακόμη σημαντικό βήμα στη στρατηγική του Δήμου Χανίων, για μια πόλη που δεν «αφήνει» κανέναν πίσω. Με στοχευμένες δράσεις και νέες σύγχρονες δομές, ενισχύουμε καθημερινά το δίχτυ προστασίας για τους συμπολίτες μας που βρίσκονται σε ανάγκη. Το Κοινωνικό Φαρμακείο του Δήμου Χανίων, δίπλα σε άλλες κοινωνικές υπηρεσίες του Δήμου, εξασφαλίζει άμεση πρόσβαση και ολοκληρωμένη υποστήριξη συμβάλλοντας ουσιαστικά στη βελτίωση των προσφερόμενων υπηρεσιών σε ευάλωτες ομάδες».